Eiland keukenopstelling expo 36 magnolia hoogglans in bouwpakket

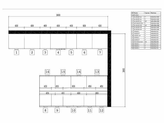
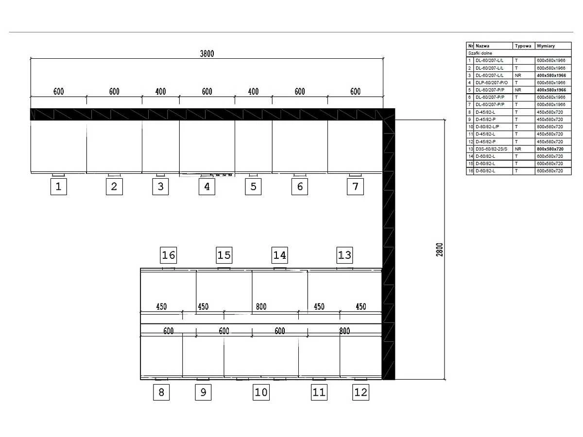
Toonzaalkeuken expo 36 in BOUWPAKKET: Bestaande uit kook-/werkeiland, ingemaakte kast. Voorzien van: - Formica werkblad, dikte 38 mm, - Deuren en laden in MDF met afgerond laminaat 19mm, - Soft close sluitingen, Totale afmetingen: - Eiland: 1200 x 2648 mm, - Inbouwkast: 3815 x H 2066 mm, Zonder keukentoestellen, decoratie, verlichting, barstoelen en kookgerei. Inclusief: plinten, plinthouders, verstelbare pootjes, softclose SAMET scharnieren, deurtjes 19mm, kasten 16mm, werkblad 38mm, kunstof handvaten. Elke kast is apart dus de opstelling kan gemakkelijk aangepast worden, werkblad is niet uitgezaagd dus de koper kan zelf bepalen waar de kookplaat en spoelbak wordt geplatst. De keukens zijn eenvoudig zelf te monteren. Hier vind je links naar korte instructievideo’s: https://www.youtube.com/shorts/NmspbV-G1Lc https://www.youtube.com/watch?v=BRwDgCH20cs https://www.youtube.com/watch?v=E2Invr5EQtY Je kan de modellen bekijken tijdens de kijkdag of 24/7 in onze kleine showroom met camerabewaking: Rode Akkers 4, 2460 Kasterlee (laatste gebouw links, eerste verdieping). Nee

Startbod
€ 1000,00
Aantal biedingen
17
Huidig bod
€ 2600,00
Einddatum
Kavel nummer: 13
Einddatum
Einde op 27/10/2025 18:00
Veilinghuis
Vavato
© 2026 Alleveilingen. Alle rechten voorbehouden.